Located in the exclusive gated community of 9 Lions Residences above Puerto Banus, this corner duplex penthouse offers complete privacy, breathtaking sea views, and the feel of a private villa – without the maintenance.
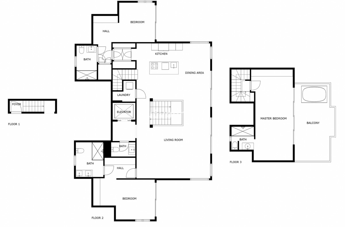
Enjoy sun-filled living across two levels, with three en-suite bedrooms, floor-to-ceiling windows, and expansive south-facing terraces. The master suite occupies the upper floor, with its own solarium and Drop Jacuzzi.
This home was purchased new from the developer and has been owned by only one family, ensuring it’s been carefully maintained.
High-end finishes include Gaggenau appliances and Villeroy & Boch bathrooms. Direct elevator access from the garage brings you to your private floor with secured entry.
The community offers 24/7 security, concierge service, heated pools, gym, saunas, and lush gardens. Out of 53 residences, only nine are duplex penthouses – making this a truly rare find.
Interior 247 m² | Terraces 128 m² | Private Garage (3 cars) 83 m² | Storage 10.6 m²